R parameter: a universal variable used for assignment and operation.
B. C: Global and local variables.
SET, CLR: Directly set or reset the digital output or internal flag.
Special Features:
/TRIG: Define a trigger point that can perform certain actions when moving to a specific position.
/OVER: Overpass, which can dynamically adjust the feed rate while the program is running.
G64: Limit the output of control variables and serve as a software limiter.
A typical press fit program fragment may be as follows:
text
N10 G01 X100.0 F500 ; Quickly move at a speed of 500mm/min to the 100mm position
N20 G26 X105.0 F50 ; Approaching the mechanical stopper at a speed of 50mm/min
N30 G61 ; Activate pressure limit
N40 G01 X110.0 ; Continue moving forward until the pressure limit value is reached (maintained by the pressure controller)
N50 G04 F2.0 ; Maintain pressure for 2 seconds
N60 G60 ; Activate pressure controller (for precise pressure control, such as pressure relief)
N70 G04 F0.5
N80 G62 ; Cancel pressure restriction/pressure control
N90 G01 X20.0 F500 ; Quick Return
M02 ; Program ends
This code clearly demonstrates the entire process of position control, block approximation, pressure limitation, holding pressure, and exit, which is a classic combination in hydraulic applications.

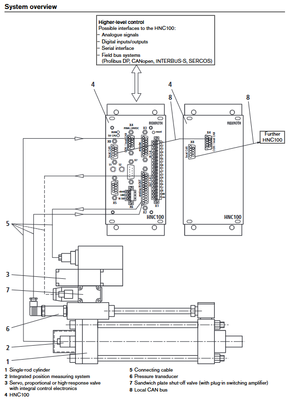
Installation and Interface: Key Points for Hardware Integration
Successful projects cannot be achieved without proper hardware integration. HNC100 offers multiple models to accommodate different numbers of I/O points. For example, the single axis versions VT-HNC100-1-2X/-08...,/-16...,/-24... correspond to 8, 16, and 24 I/O points respectively, and the external dimensions also change accordingly (with a maximum width of 106.5mm). Its installation method is standard guide rail or base plate installation.
When wiring, there are several key points that need special attention:
Power supply: The X6 interface provides 18-36 VDC power input and has independent shielding and ground pins (GND).
Analog interface (X2): All analog inputs are in differential form (such as Uin 1+, Uin 1-), which helps to suppress common mode interference. A reference voltage of ± 10V (Uref) can directly supply power to potentiometers or sensors. Multiple analog outputs (Uout1-4) can be flexibly assigned to different control variables.
Encoder interface (X3): Connect different wires according to the type of encoder used (incremental, SSI). For example, the A,/A, B, and/B signals of an incremental encoder are connected to the corresponding Ua0,/Ua0, Ua1, and/Ua1 pins. The SSI encoder needs to connect the Clock and Data signals. Please note that HNC100 offers two sensor power supply options: 5V TTL (maximum 150mA) and 24V N (maximum 200mA), depending on the encoder specifications.
Digital I/O (X1. x): The input is high level active (≥ 10V), and the output is high side switching, which means the output high level is Uo (power supply voltage). All outputs are equipped with short-circuit protection.
Fieldbus (X5, X7, X4): The standard configuration is RS232 serial port. If integration into higher-level control networks is required, Profibus DP (up to 12 MBaud), CANopen, or INTERBUS-S can be selected. The X4 port also provides a local CAN bus for parameterization or data exchange between multiple HNC100 controllers.
The 'res' pin: The document clearly states that the pin marked as' res' is reserved and must not be connected. This must be strictly followed in engineering implementation.
Troubleshooting and Maintenance Strategy
Although the HNC100 is designed to be sturdy, it may still encounter problems in practical applications. The troubleshooting of the system should follow the logic:
Power supply inspection: First, confirm whether the 18-36V power supply of X6 is normal and whether the power consumption is within the allowable range. Observe the LED indicator lights on the controller (although not detailed in the document, there are usually power and error indicators).
Communication failure: If unable to connect to WIN-PED, check if the RS232 cable (to be ordered by yourself, material number R900842349) is correct and if the baud rate setting matches (default 9.6 kBaud). For Profibus DP users, please note that the bus connector (material number R900050152) needs to be ordered separately.
Encoder/sensor malfunction: The HNC100 is equipped with critical monitoring functions, which is an important manifestation of its reliability.
Cable breakage monitoring: For incremental, SSI encoders, and 4-20mA sensors, the controller can detect signal line breakage.
Dynamic tracking error monitoring: If the difference between the actual position and the commanded position exceeds the set threshold (such as due to mechanical jamming or valve failure), the controller will immediately reset the "no error" output and deactivate the controller to prevent equipment damage.