Introduction: When your LZS series power supply needs to be upgraded or replaced
In industrial automation, process control, power systems, and communication equipment, switching power supplies are the core components that provide stable DC voltage. As equipment ages or ceases production, engineers often face the challenge of replacing old models of power modules. For example, the LZS series power supply has a long history of application in the market. When old models (such as LZS-1000-3) are discontinued or have insufficient performance, how to correctly select, install, and configure their upgraded model LZS-A1000-3 has become an urgent technical knowledge needed by many maintenance and design personnel.
This article is based on the official technical manual of LZS-A1000-3 power supply, providing a detailed practical guide from multiple dimensions such as replacement selection, specification comparison, installation safety, remote control, parallel/series configuration, and troubleshooting. Whether you need to replace a faulty power supply or select a new project, this article will help you quickly grasp the core technical points of LZS-A1000-3.
Overview of LZS-A1000-3: Key Differences from Old Models
LZS-A1000-3 is a single-phase AC-DC switching power supply with an output of 24 V DC (adjustable range 18-29.4 V), a rated output current of 42 A (at 60 ° C ambient temperature), and a maximum output power of 1008 W. It is designed for industrial environments and has a wide input voltage range (85-265 V AC, 47-440 Hz), high efficiency (typical 83% @ 110 V AC), active power factor correction (0.99 typical value), and rich remote monitoring and control functions.
Important note: According to the manual, LZS-A1000-3 is not backward compatible with the old model LZS-1000-3. This means that when directly replacing mechanical or electrical components, careful verification of installation dimensions, terminal definitions, and control interfaces is required. In the replacement project, it is necessary to refer to this guide for adaptation.
Key specification verification before replacement selection
Before deciding to replace the old power supply with LZS-A1000-3, please check the following parameters item by item:
2.1 Input specifications
Voltage range: 85-265 V AC (47-440 Hz) or 100-380 V DC.
Attention: Safety certification (UL/CSA/IEC) is only valid at 47-63 Hz; DC input has no security authentication. The minimum voltage for DC startup is 110 V DC, which can be as low as 65 V DC after startup. However, Lambda does not recommend running below 100 V DC for more than one minute as it may cause damage.
Input current: 30 A (110 V AC), 40 A (220 V AC). Ensure that the front-end circuit breaker and wire specifications meet the requirements.
Surge current: Complies with EN61000-3-2, without excessive startup surge.
Input protection: Built in fuse (user non replaceable), input surge protection is 1 kV differential/2 kV common mode.
2.2 Output specifications
Rated output: 24 V DC/42 A (1008 W) @ 60 ° C; derated to 25.2 A (605 W) at 70 ° C. Derating curve: 100% full load from -30 ° C to 60 ° C, linear derating to 60% (4%/° C) from 60 ° C to 70 ° C. For applications between 47-440 Hz, 100% full load can be achieved from -30 ° C to 55 ° C, with a 60% derating from 55 ° C to 65 ° C.
Adjustment range: 18-29.4 V (adjustable through a multi turn potentiometer).
Ripple and noise: ≤ 75 mVp-p (20 MHz bandwidth).
Load/linear adjustment rate: ± 0.1%.
Transient response: When there is a 25% step load change, the recovery time is less than 1.25 ms, and overshoot/undershoot is ± 1%.
2.3 Environment and Machinery
Working temperature: -30 ° C to+70 ° C (derating required).
Storage temperature: -40 ° C to+85 ° C.
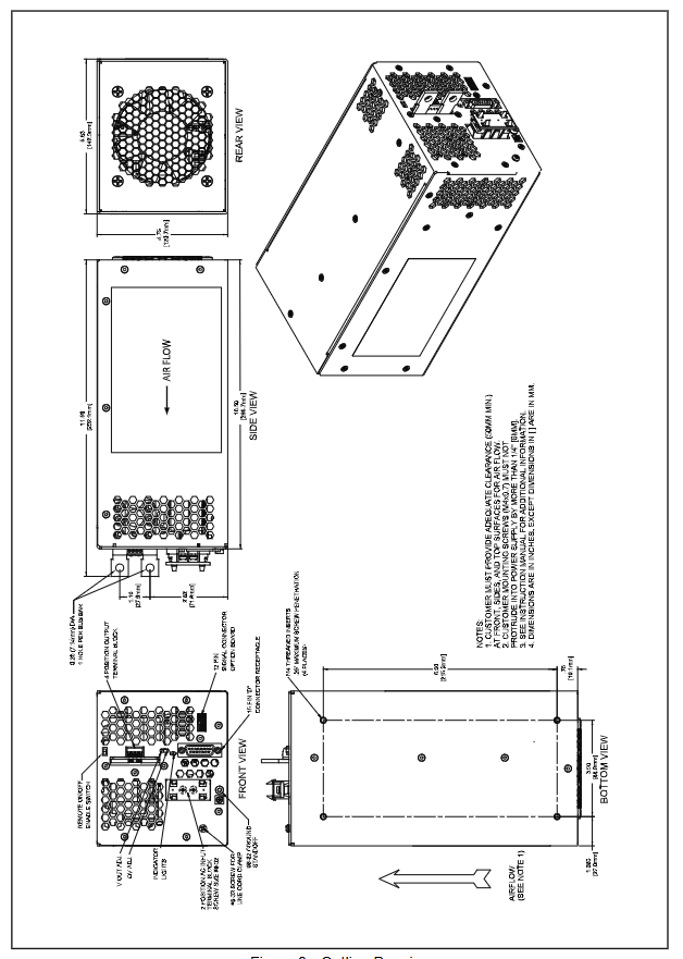
Size: 5.62 inches high x 4.75 inches wide x 10.5 inches long (approximately 142.7 x 120.7 x 266.7 mm).
Weight: 8.1 pounds (approximately 3.67 kg).
Installation: Single sided installation, use M4 screws, screw in depth should not exceed 1/4 "(6.35 mm) to avoid damaging internal components.
Cooling: Built in variable speed ball bearing fan.
2.4 Protection Function
Overvoltage protection (OVP): adjustable range 20-34 V, factory set 31.0 V.
Overcurrent protection: The factory setting is 110% to 130% of the rated current.
Overheating protection: self resetting thermostat.
Isolation voltage: Input to output 4242 V DC; Input 2121 V DC to the casing; Output 500 V DC to the casing.
If the parameters of the old power supply fall within the above range, LZS-A1000-3 can be used as a substitute. Otherwise, additional adaptation is required.

Installation and wiring: Ensure safety and reliability
3.1 Safety precautions (directly taken from the manual)
Installation by professionals only: It must be operated by qualified personnel familiar with the hazards of AC power supply equipment.
Reliable grounding: grounded through the PE terminal (IEC 60417-1 symbol 5019) on the front panel, in compliance with local electrical regulations.
Input wire: Use copper stranded wire, 12-14 AWG, temperature resistant to 105 ° C. All wire strands must be securely fixed in the terminal block to avoid short circuits. The tightening torque is 9 in lb (approximately 1.02 N · m).
Output wire: Use a temperature resistant 105 ° C wire and select a current carrying capacity of 150% of the rated load. The output terminal is a dangerous voltage, and the final device must not be touched by the user. The positive or negative pole of the output can be grounded.
Ventilation: The opening on the casing is used for ventilation and must not be blocked after installation.
Internal fuse: user cannot replace. If there is an internal malfunction, it must be returned to the manufacturer for repair.
Environment: Only applicable to environments with pollution level 2. The final equipment must provide mechanical and fire-resistant enclosures to prevent electric shock, fire, and hazardous energy.
3.2 Typical Local Sensing Connection (Figure 2)
Most applications use local sensing (i.e. adjusting voltage directly at the power output terminal). Connect the load to the+V and - V busbars, and connect the sensing jumper (usually included) between+V and+S, - V and - S. This way, the power supply will adjust based on the output voltage, ignoring the voltage drop in the circuit.
3.3 Remote sensing connection (Figure 3)
When the load is far away from the power supply and the line voltage drop is significant, remote sensing must be used. Connect the+S and - S wires directly to the positive and negative terminals of the load terminal. This way, the power supply will compensate for the voltage drop in the circuit, ensuring that the load terminal voltage is accurately at the set value. Attention: The total voltage drop between the output terminal and the load shall not exceed 1.0 V, and the output terminal voltage shall not exceed 29.4 V.
3.4 Input and output connection hardware
Input: Heavy duty terminal block.
DC output: heavy-duty busbar with 1/4 "(6.35 mm) clearance holes, comes with connecting hardware.
Auxiliary control and alarm signal: connected through a 15 pin D-sub female socket (chassis installation) and a 4-position rewirless terminal TB201 (can accept 14 AWG wire).
Remote programming and monitoring: achieving intelligent power management
LZS-A1000-3 provides rich remote control functions, enabling it to be integrated into automation systems, rather than just a simple power supply.
4.1 Remote output voltage programming
The output voltage can be remotely adjusted through external resistors or external voltage sources (instead of potentiometers on the panel). Connection point: pins 1 and 2 of TB201.
Resistance programming: 1000 Ω/volt. For example, to obtain a 24 V output, a 24 k Ω resistor is required. The voltage range corresponds to 18-29.4 V.
Voltage source programming: 1 V/volt. For every 1 V provided by the external voltage source, the output increases by 1 V. The external voltage source is connected between pin 1 (+) and pin 2 (-).
When using remote programming, it is necessary to place the local/remote selection switch (if any) in the remote position. Attention: Remote programming only controls the output voltage and does not affect the overvoltage protection setting value.
4.2 Remote On/Off
Through pins 6 and 7 of the "D" connector, TTL compatible signals can be used to control power output.
Logic '0' (below 0.7 V), short circuit or open circuit: disable output.
Logic "1" (above 2.5 V): Enable output.
Signal current: less than 4 mA at logic 1.
Output response time: Within 100 ms after applying logic 1, the output reaches the specification.
Enable switch: The "OUTPUT ENABLE" switch at the end of the chassis must be turned from the "LOCAL" position to the "REMOTE" position for the remote power on/off function to take effect.
Pin 6 and 7 are completely isolated from all other terminals (withstand voltage above 500 V) and can be safely connected to external control circuits.
4.3 Auxiliary monitoring and alarm signals (optocoupler conduction output)
These signals are optocoupler outputs that allow a maximum current of 1 mA when conducting, with a voltage drop of<0.4 V. They can be used to drive LED or PLC inputs.
Input Power Good: When the input capacitor voltage is sufficient to maintain a 10 ms power-off holding time, this signal conducts. Even when remotely disabling output (AC still present) or shutting down due to overheating, this signal will still be asserted (indicating normal AC input but no power output).
Output Good: Conducts when the output voltage exceeds its minimum specified value (approximately 95% of the set value). If the output is under voltage, over voltage, or the power is in standby mode, the signal will be disconnected.
Inverter Good: When the internal inverter of the power supply is working normally, it conducts. Under extremely light loads, the signal may be uncertain.
These signals have a minimum isolation voltage of 500 V between the power output and other signals, and an isolation voltage of 3000 V AC from the AC input.
4.4 Synchronization Signal (Sync)
The "D" connector provides an auxiliary signal (power switch frequency) of approximately 200 kHz, which can be used to synchronize other devices.
Parallel and series operation: expanding power or voltage
When a larger current or higher voltage is required, two or more LZS-A1000-3 power supplies can be used in combination.
5.1 Parallel operation (Figure 6)
Purpose: To increase the total output current. For example, two parallel devices can obtain 84 A (24 V).
Connection method: Connect the positive and negative poles of each power supply in parallel. At the same time, pin 5 (current sharing bus) on the "D" connector must be connected. Pin 5 of all parallel units should be connected together.
Current sharing accuracy: within 10% of the rated current at 60 ° C.
Attention: It is recommended to use a power supply with the same model and output voltage setting. The output terminal can be grounded or floating. The total output current after parallel connection cannot exceed the sum of the rated values of each unit.
5.2 Serial Operation (Figure 7)
Purpose: To increase the output voltage. For example, two units connected in series can obtain 48 V (maximum 58.8 V).
Connection method: Connect the negative output of the first device to the positive output of the second device. The total output voltage is the sum of the two.
Attention: After series connection, the overvoltage protection of each power supply should be set independently. The load should not exceed the rated current of any power source. When connected in series, the output current is limited by the unit with the minimum rated current.

Common troubleshooting guide
6.1 No output from power supply
Possible causes, inspection methods, and solutions
The input voltage is missing or too low. The measured AC input terminal voltage should be 85-265 V. Check the upstream circuit breaker, fuse, and wiring
Remote shutdown is disabled. Check the position of the "OUTPUT ENABLE" switch (LOCAL/REMOTE); Measure the voltage of pins 6-7 of the "D" connector. If using remote, ensure logic 1; If remote is not used, turn the switch to LOCAL
Output overload or short circuit disconnect the load, measure whether the output is restored, and check whether the load has a short circuit; Reduce load current
Overvoltage protection triggers measurement to determine if the output voltage exceeds the OVP set point; Check if the OVP potentiometer has been mistakenly adjusted to adjust the OVP to the appropriate value (higher than the normal output voltage)
Overheating protection check whether the ambient temperature exceeds 70 ° C; whether the fan rotates to improve ventilation, reduce ambient temperature, and clear the fan filter screen
Internal fault: The red light is constantly on and there is no output. Return to the manufacturer for repair
6.2 Unstable or low output voltage
Possible causes, inspection methods, and solutions
Monitoring for excessive input voltage fluctuations and using a regulated power supply for AC input
Load transient change inspection: Increase the load change rate by increasing the output capacitance or using a higher power supply
Remote sensing wiring error or open circuit check if+S/- S is reliably connected. If using local sensing, ensure jumper installation
Output voltage adjustment potentiometer drift measurement voltage, try readjusting with a screwdriver to fine tune the potentiometer
6.3 The green "Output Good" LED is not lit but the output is normal
Possible reason: The output voltage is lower than 95% of the set value (for example, the adjusted voltage is 18 V, while the set value is 24 V). Check if the actual output voltage is consistent with the set value. It may also be in a remote shutdown state (the LED will also turn off).
6.4 Red "Fault" LED on
Meaning: overvoltage, overheating, or overcurrent shutdown, or output below 95% of the set value, or remote disabling.
Solution: First check for overload, high temperature, or OVP false triggering. Disconnect the load, cool down and restart. If the LED is still on and there is no output, it may be internally damaged.
6.5 Poor current sharing during parallel operation
Check if pin 5 of all units is reliably connected.
The output voltage of each unit should be adjusted to be consistent (within a difference of 20 mV).
The impedance of the load line should be matched as much as possible.
Maintenance and lifespan extension suggestions
Regular cleaning: Dust accumulation on fans and heat sinks can cause overheating. Use low-pressure compressed air for blowing.
Check the fan: Variable speed fans may run at low speeds under light loads, but should accelerate under heavy loads. Listen for any abnormal noise.
Tighten terminals: Vibration environment may cause loose wiring, check the input/output terminal torque once a year.
Replacement cycle: The lifespan of electrolytic capacitors is shortened at high temperatures. If the power supply has been running continuously for more than 5 years, it is recommended to replace it in a planned manner. The LZS series offers a 5-year warranty, but the actual lifespan depends on the environment.
Spare parts strategy: For critical systems, it is recommended to backup at least one power supply of the same model to shorten downtime due to malfunctions.
Precautions for Replacement with Old Model LZS-1000-3
Although LZS-A1000-3 outperforms the old model in terms of electrical performance, the following differences need to be particularly noted in replacement projects:
Project LZS-1000-3 (old) LZS-A1000-3 (new) replacement action
The external dimensions are slightly different, 5.62 "× 4.75" × 10.5 ". Please check the installation hole position and it may require an adapter plate
Control interface may be different. Remake control cable for 15 pin D-sub+TB201
Remote power on/off logic may be opposite, low level or open circuit=turn off. Adjust external circuit according to actual logic
The current sharing pins may be different. When pin 5 is connected in parallel with the current sharing bus, it needs to be confirmed
Output terminal screw terminal busbar may require replacement of load wiring terminals
Suggestion: Before replacing, download the complete manual of LZS-A1000-3 from the official website and compare the wiring diagrams of the old system item by item. If possible, test a single new power supply offline to confirm that all remote control signals and alarm signals are working properly, and then replace them in bulk.
